ID CP2193364

Apartament+loc parcare sunbteran

ID CP2193364

94,260 €

Apartament cu 2 camere de vânzare
Central, Constanta
62 mp
2000

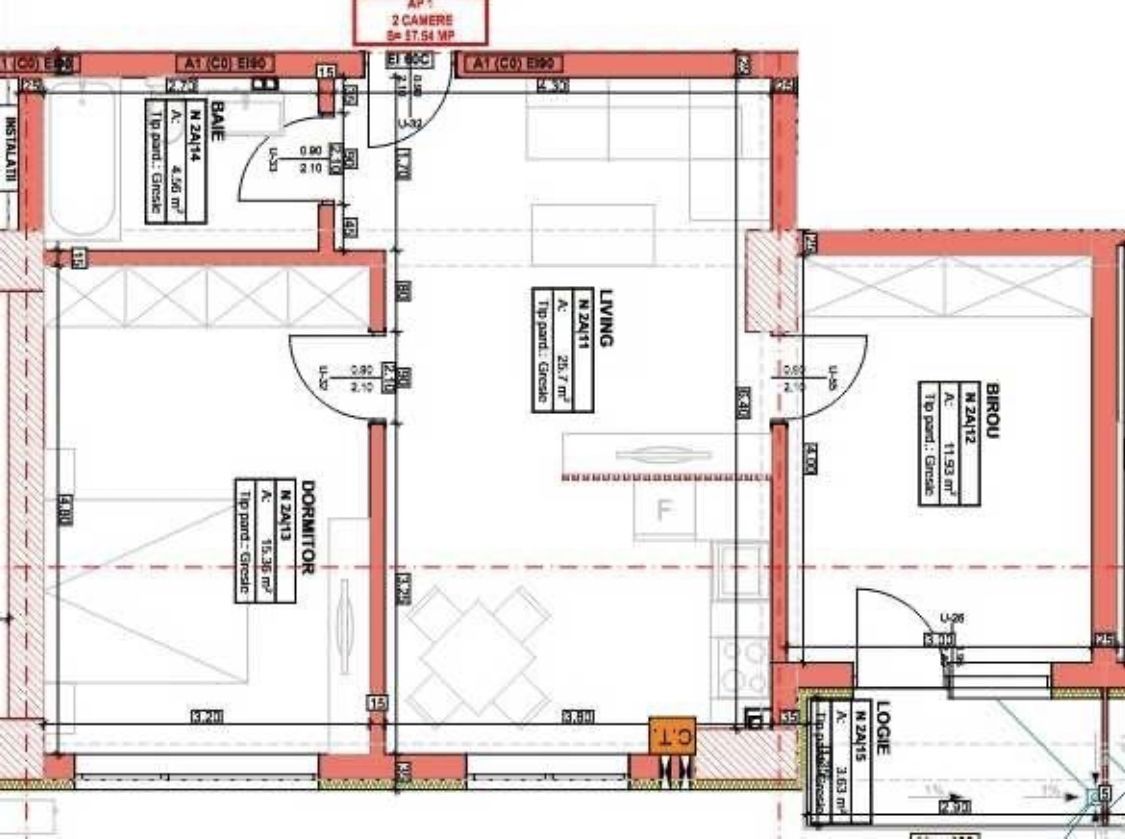
An costructie 2023 / 2024 Dupa cum se poate vedea din poza atasata anuntului, apartamentul dispune de: - Living Room + Bucatarie Open space (25,7 mp2) - Baie ( 4.56 mp2) - Dormitor 15,36 mp2 - Birou / Dormitor copil (11.93 mp2) - Logie / Balcon ( 3,63 mp2) - Apartamentul vine nemobilat insa cu centrala proprie gaz si un aer conditionat intalat in dormitor. - Loc de joaca / Foisor si spatiu verde in cartierul rezidential. Foarte important de mentionat - apartamentul este la etajul 9 cu vedere spre Podul de butelii si spre cartierul de case, ceea ce inseamna ca NU se va mai construi alt bloc in acea zona. De asemenea, apartamentul vine la pachet cu loc de parcare la demisol (chiar langa lift) Nu s-a facut receptia apartamentului deoarece inca se lucreaza la instalarea gazelor / curentului electric. Apartamentul se poate viziona in timpul saptamanii insa trebuie sa discutam cu cel putin 1-2 zile inainte - in functie de cum imi permite timpul anunt dezvoltatorul si putem face o vizionare. Contractual, apartamentul va fi dat in uz pe data de 31.03.2024. Modalitate de plata: - Toata suma cash, astfel o parte din bani vor ajunge la dezvoltator (evident, totul cu notar si acte) - Prin cedare rata la dezvoltator pentru suma de 38 050 euro. (Au mai ramas 48 de rate a cate 1170 EUR fiecare) Pretul nu este absolut deloc negociabil - apartamentul este nou nout, inca nu s-a locuit in el. *NU MA INTERESEAZA COLABORARI CU AGENTI IMOBILIARI.

Citește mai mult

  • Tip apartament
    Apartament
  • Compartimentare
    Decomandat
  • Număr camere
    2
  • Geam la baie
    Da
  • Etaj
    9
  • Suprafață utilă
    62 mp
  • Suprafață construită
    62 mp
  • Disponibilitate
    Imediat
  • Confort
    1
  • Imobil
    Bloc de apart.
  • An construcție
    2000
  • Construcție nouă
    Da

Facilități

Apă
Canalizare
CATV
Curent
Garaj subteran
Gaz
Iluminat stradal
Internet
Mijloace de transport în comun
Străzi asfaltate
Telefon
Sarah Szekelyhidi
Manager

0040733773030


Solicită chiar acum o vizionare
Telefon
Sună acum Solicită vizionare
Necesare:

Site-ul nu poate funcționa corect fără aceste cookie-uri. Vezi cookie-urile

Statistică:

Strângem statistici anonime despre voi, vizitatorii unici, pentru a vă îmbunătăți experiența dumneavoastră. Vezi cookie-urile

Marketing:

Pentru a ne promova mai eficient serviciile noastre, folosim cookies pentru a vă identifica și a vă oferi proprietăți și servicii personalizate. Vezi cookie-urile

Acest site folosește cookies, află detalii. Alege ce tipuri de cookies dorești să permitem: