ID CP2192864

BRASADAS vinde ap 3 cam in CARPATI 2 la etajul 1/4.

ID CP2192864

126,000 €

Apartament cu 3 camere de vânzare
Carpati 2, Satu Mare
80 mp
1987

BRASADAS vinde apartament cu 3 camere, 1 bucatarie, 2 bai, beci si loc de parcare, la etajul 1 in cartierul CARPATI 2.

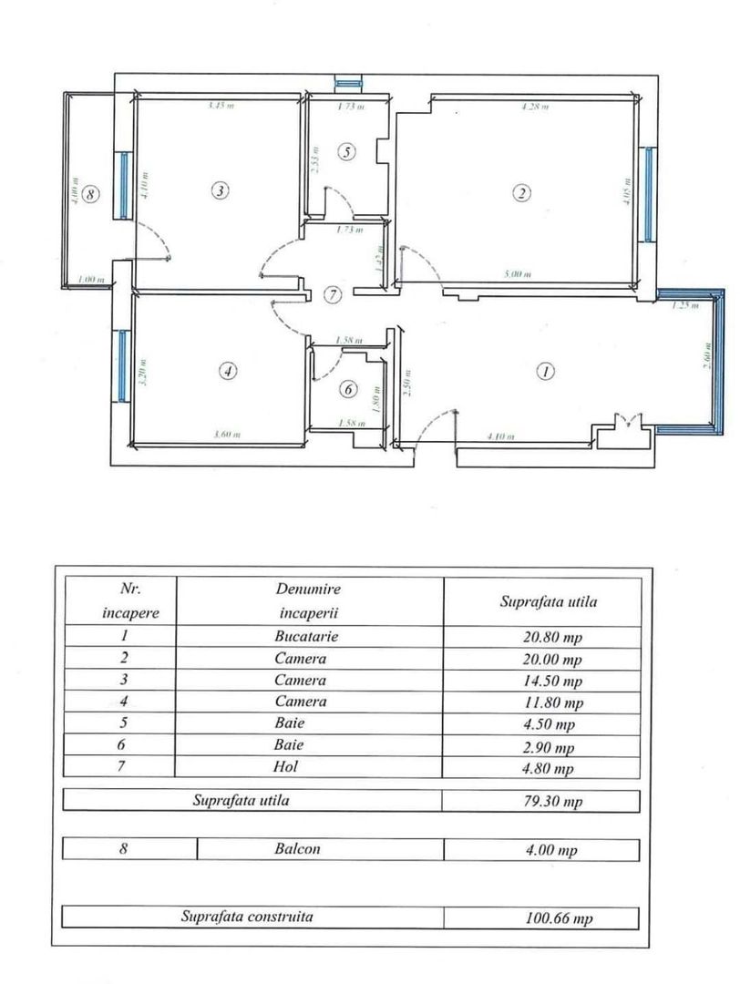
Suprafaţă construită: 100,66 mp

Suprafaţă utilă: 79,30 mp

Suprafaţă utilă totală cu balcon: 83,30 mp

Bucătărie cu balcon închis în suprafaţă de 20,80 mp, utilată cu electrocasnice (cuptor și plită electrică, combină frigorifică, cuptor cu microunde, aparat de cafea cu boabe si TV) Instalaţie de aer condiţionat și Centrala termică.

Camera 1 are suprafaţă 20,00 mp și include mobilier, coltar in forma de U si TV, RoboAspirator.

Camera 2 are suprafaţă 14,50 mp, include mobilier și iesire la balconul de 4,00 mp.

Camera 3 are suprafaţă 11,80 mp și include mobilier si TV.

Parchet laminat de 12 mm pe culoarea lemnului la fel in toate camerele.

Imobilul este dotat cu un beci racoros și uscat.

Se vinde împreună cu un loc de parcare situat in fata blocului.

Se vinde mobilat si utilat.

www.brasadas.com.

Citește mai mult

  • Tip apartament
    Apartament
  • Compartimentare
    Decomandat
  • Număr camere
    3
  • Dormitoare
    2
  • Număr bucătării
    1
  • Număr băi
    2
  • Geam la baie
    Da
  • Etaj
    1
  • Suprafață utilă
    80 mp
  • Suprafață construită
    100 mp
  • Disponibilitate
    Imediat
  • Confort
    1
  • Număr balcoane
    1
  • Imobil
    Bloc de apart.
  • Stadiu construcție
    Finalizată
  • An construcție
    1987
  • Tip construcție
    Cărămidă
  • Număr etaje clădire
    4

Facilități

Sarah Szekelyhidi
Manager

0040733773030


Solicită chiar acum o vizionare
Telefon
Sună acum Solicită vizionare
Necesare:

Site-ul nu poate funcționa corect fără aceste cookie-uri. Vezi cookie-urile

Statistică:

Strângem statistici anonime despre voi, vizitatorii unici, pentru a vă îmbunătăți experiența dumneavoastră. Vezi cookie-urile

Marketing:

Pentru a ne promova mai eficient serviciile noastre, folosim cookies pentru a vă identifica și a vă oferi proprietăți și servicii personalizate. Vezi cookie-urile

Acest site folosește cookies, află detalii. Alege ce tipuri de cookies dorești să permitem: