ID CP2193651

Casa de vanzare zona Odoreu

ID CP2193651

87,000 €

Casă / Vilă cu 2 camere de vânzare
Odoreu
86 mp

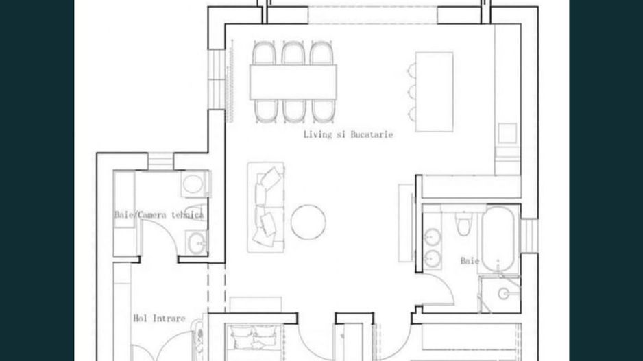
Proprietar - Vand Casa noua - Zona Odoreului str.Metropolis(cartier Olimp) Compartimentare: living, bucatarie, 2 camere, 2 bai, hol generos, terasa dupa cum se observa si pe plan Suprafata constructiei este de 115 mp Teren împrejmuit (gard plasa) Suprafata terenului este de 3 ari ( posibilitate de achizitionare si cu 6 ari ) Utilitati: Curent , Gaz , Apa , Canal , RDS Casa se preda cu exteriorul complet finisat, interior vopsit in alb - Interior tencuit, gletuit 3 maini si Vopsit Alb - Geamuri termopan Rehau + pervaze exterioare - Instalatie electrica + prize si intrerupatoare - Instalatie sanitara cu incalzire in pardosea - Exterior izolat cu polistiren de 15 cm Eps 80, silicat si caramida aparenta - Tavane izolate cu vata minerala 20 cm - Tigla Terran

Citește mai mult

  • Număr camere
    2
  • Disponibilitate
    Imediat
  • Tip casă
    Individual
  • Suprafață utilă
    86 mp
  • Suprafață teren
    115 mp

Facilități

Apă
Canalizare
CATV
Curent
Gaz
Iluminat stradal
Internet
Mijloace de transport în comun
Străzi asfaltate
Telefon
Sarah Szekelyhidi
Manager

0040733773030


Solicită chiar acum o vizionare
Telefon
Sună acum Solicită vizionare
Necesare:

Site-ul nu poate funcționa corect fără aceste cookie-uri. Vezi cookie-urile

Statistică:

Strângem statistici anonime despre voi, vizitatorii unici, pentru a vă îmbunătăți experiența dumneavoastră. Vezi cookie-urile

Marketing:

Pentru a ne promova mai eficient serviciile noastre, folosim cookies pentru a vă identifica și a vă oferi proprietăți și servicii personalizate. Vezi cookie-urile

Acest site folosește cookies, află detalii. Alege ce tipuri de cookies dorești să permitem: