ID CP2518534

Case de vanzare in Paulesti

ID CP2518534

140,000 €

Casă / Vilă cu 4 camere de vânzare
Paulesti
120 mp

De vanzare 5 case noi in Paulesti, str. Iancu Flondor. (vezi la sectiunea imagini locatia)

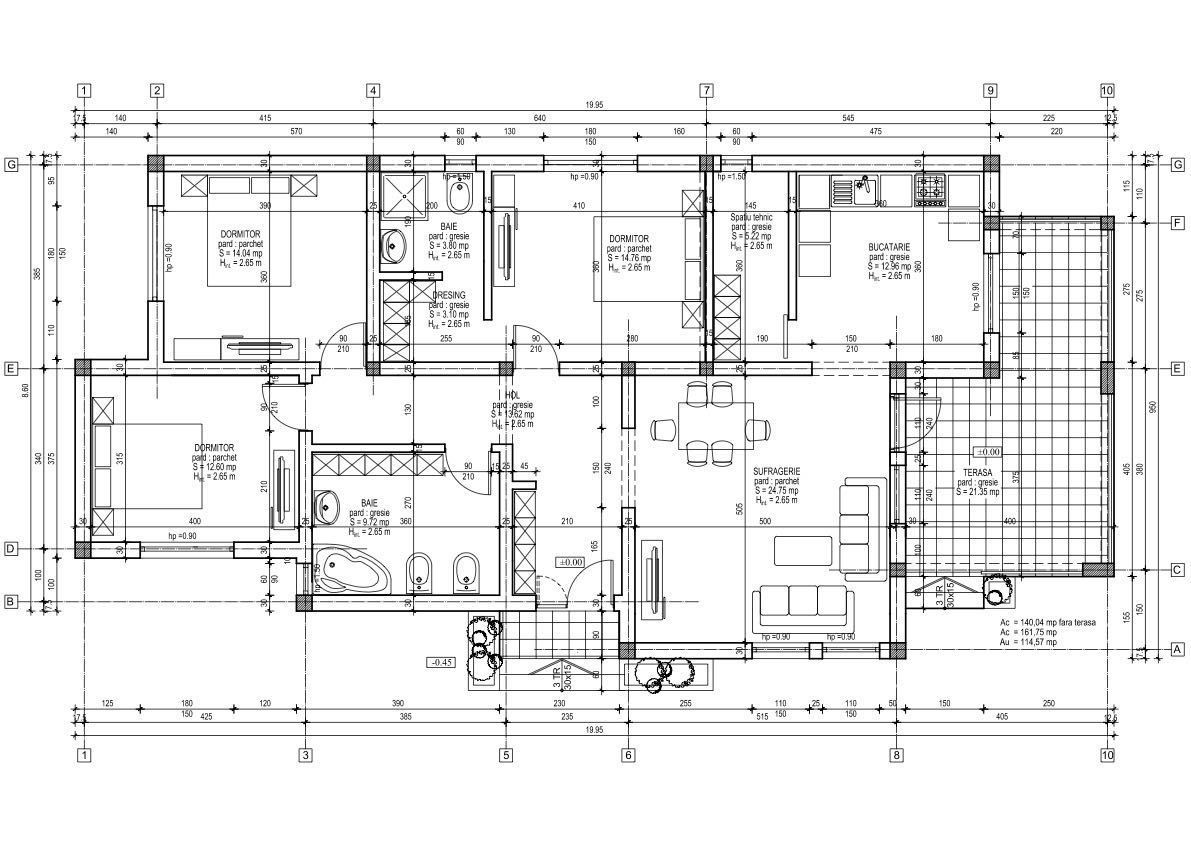
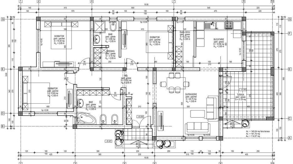
Casa este compartimentata in urmatorul fel: 3 dormitoare, 2 bai, un dresing, o bucatarie cu un spatiu tehnic, hol si o sufragerie spatioasa. In sectiunea imagini puteti observa si cum este compartimentarea organizata.

Terenul are o suprafata de 5,5 ari.

Casa are o suprafata totala construita de 160 mp si utila 120 mp.

Pentru mai multe detalii, va stau la dispozitie la numarul de telefon 07******39.

Citește mai mult

  • Număr camere
    4
  • Disponibilitate
    Imediat
  • Tip casă
    Individual
  • Suprafață utilă
    120 mp

Facilități

Sarah Szekelyhidi
Manager

0040733773030


Solicită chiar acum o vizionare
Telefon
Sună acum Solicită vizionare
Necesare:

Site-ul nu poate funcționa corect fără aceste cookie-uri. Vezi cookie-urile

Statistică:

Strângem statistici anonime despre voi, vizitatorii unici, pentru a vă îmbunătăți experiența dumneavoastră. Vezi cookie-urile

Marketing:

Pentru a ne promova mai eficient serviciile noastre, folosim cookies pentru a vă identifica și a vă oferi proprietăți și servicii personalizate. Vezi cookie-urile

Acest site folosește cookies, află detalii. Alege ce tipuri de cookies dorești să permitem: