ID CP2798409

BRASADAS vinde ap 2 cam Dorobanti pe Radu Beller.

ID CP2798409

119,000 €

Apartament cu 2 camere de vânzare
Primaverii, Bucuresti
42 mp
1949

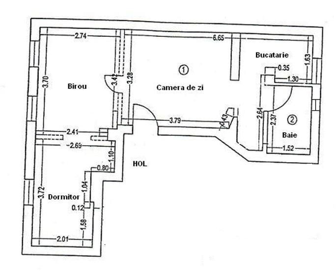
Agentia Imobiliara BRASADAS vinde apartament 2 camere, 42 mp in Dorobanti, Str. Radu Beller, etaj 4 din 4, mansarda inalta, stradal, vedere dubla, semidecomandat.

Dotat si utilat complet, mobilier modern, renovat integral in 2021, schimbat gresie, faianta, parchet, usi interior, montat centrala termica pe gaz, refacut instalatiile termice (cupru) si apa (toate tevile noi), corpuri de iluminat.

Are AC (Panasonic, revizie facuta), frigider (2024), cuptor (2023), plita vitroceramica (2021), masina de spalat (2025). Acoperisul a fost renovat in 2023.

Este un apartament boem cu vedere pe fata spre Parcul Floreasca, pe spate Televiziunea Romana, foarte aproape de parcul Floreasca (in fata vilei), Lacul Floreasca, Sala Floreasca, Piata Dorobanti, cartierul Primaverii.

Cladirea din 1949 nu este pe lista cu risc seismic, conform actelor a fost locuinta unifamiliala a unui cuplu.

www.brasadas.com.

Citește mai mult

  • Tip apartament
    Apartament
  • Compartimentare
    Semidecomandat
  • Număr camere
    2
  • Etaj
    4
  • Suprafață utilă
    42 mp
  • Disponibilitate
    Imediat
  • Confort
    1
  • Imobil
    Bloc de apart.
  • An construcție
    1949
  • Număr etaje clădire
    4

Facilități

Cristina Cadar

0742453003


Solicită chiar acum o vizionare
Telefon
Sună acum Solicită vizionare
Necesare:

Site-ul nu poate funcționa corect fără aceste cookie-uri. Vezi cookie-urile

Statistică:

Strângem statistici anonime despre voi, vizitatorii unici, pentru a vă îmbunătăți experiența dumneavoastră. Vezi cookie-urile

Marketing:

Pentru a ne promova mai eficient serviciile noastre, folosim cookies pentru a vă identifica și a vă oferi proprietăți și servicii personalizate. Vezi cookie-urile

Acest site folosește cookies, află detalii. Alege ce tipuri de cookies dorești să permitem: