ID CP2211466

PROPRIETAR Aviatiei / Promenada Mall, 3 camere, et. 2/4, langa metrou

ID CP2211466

185,000 €

Apartament cu 3 camere de vânzare
Aviatiei, Bucuresti
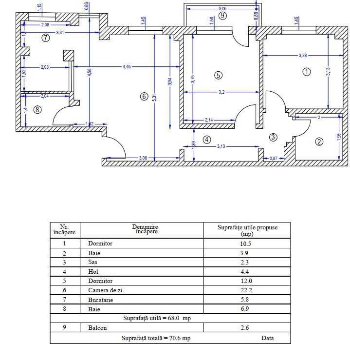
70 mp

Direct de la Proprietar - Aviatiei: ofer spre vanzare apartament 3 camere (2 bai), la 2 minute de metrou birouri Promenada Mall, in Sos. Pipera 17-19, langa Garanti Bank si la cativa pasi de scoala Herastrau. Este un apartament luminos la etajul 2 din 4, cu vedere pe spate (nu se aude traficul).

Suprafata utila 65mp, cu separatie de gaze pe scara, 3 x aer conditionat, balcon inchis, apometre.

Acces facil la metrou, magazine, birouri, parcul Herastrau la 5 minute, cativa pasi pana la scoala Herastrau si gradinita.

Locatia: Sos. Pipera 17-19

Nu sunt interesat de colaborarea cu agentiile imobiliare. Nu doresc ca date sau poze din acest anunt sa fie preluate de agentiile imobiliare sau alti terti, fara acordul meu scris.

Citește mai mult

  • Tip apartament
    Apartament
  • Compartimentare
    Decomandat
  • Număr camere
    3
  • Etaj
    2
  • Suprafață utilă
    70 mp
  • Disponibilitate
    Imediat

Facilități

Cristina Cadar

0742453003


Solicită chiar acum o vizionare
Telefon
Sună acum Solicită vizionare
Necesare:

Site-ul nu poate funcționa corect fără aceste cookie-uri. Vezi cookie-urile

Statistică:

Strângem statistici anonime despre voi, vizitatorii unici, pentru a vă îmbunătăți experiența dumneavoastră. Vezi cookie-urile

Marketing:

Pentru a ne promova mai eficient serviciile noastre, folosim cookies pentru a vă identifica și a vă oferi proprietăți și servicii personalizate. Vezi cookie-urile

Acest site folosește cookies, află detalii. Alege ce tipuri de cookies dorești să permitem: