ID CP2209449

Penthouse la 3 minute de Metrou Mihai Bravu

ID CP2209449

265,000 €

Apartament cu 3 camere de vânzare
Mihai Bravu, Bucuresti
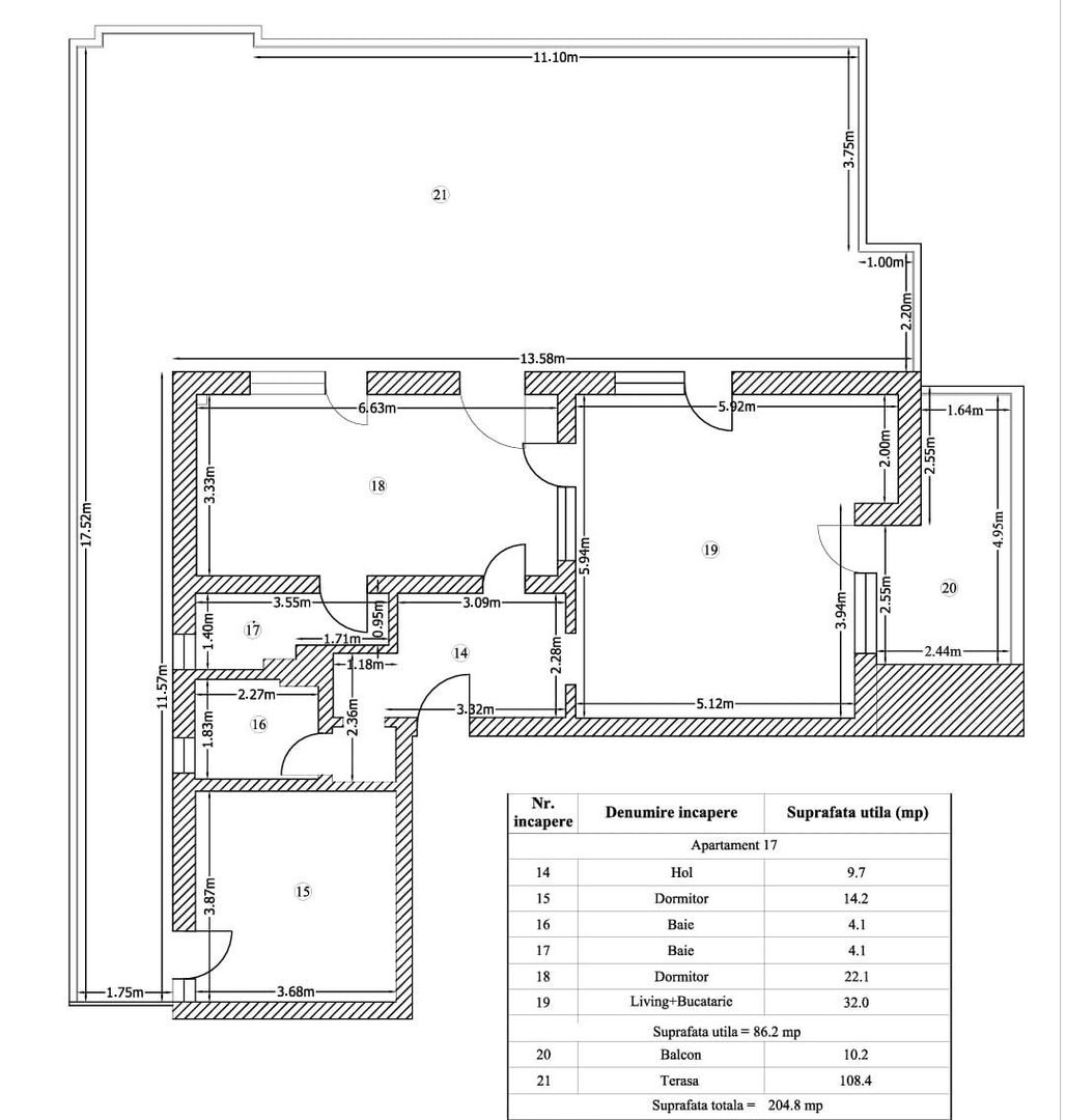
200 mp

Gradinarilor Boutique Apartaments, ultimul apartament Penthouse, 3 camere + 2 bai.

Suprafata utila 86mp

Suprafata terasa 110mp

Imobilul este format din 2S+P+2+3R iar acest apartament este situat la etajul 3, liftul pleaca din subsol, unde sunt locurile de parcare individuale, spatiile comune si terasele sunt placate cu piatra naturala, liftul este Schindler, constructia este realizata din caramida (30cm), fier si cadre de beton, termosistemul are 10cm iar decorativa este Baumit, ferestrele sunt Reynaers masterline 8, aluminiu cu geam tripan (cel mai bun profil din piata), 2×A/C, incalzirea este realizata prin pardoseala cu un sistem Uponor conectat la centrala proprie Vaillant, termostate in fiecare camera, finisajele de interior, ceramica si parchet sunt din gama de lux de la delta studio, baterii si obiecte sanitare Roca. Toate actele finalizate, pret 265.000€ + tva 19%

Citește mai mult

  • Tip apartament
    Apartament
  • Compartimentare
    Decomandat
  • Număr camere
    3
  • Etaj
    3
  • Suprafață utilă
    200 mp
  • Disponibilitate
    Imediat

Facilități

Cristina Cadar

0742453003


Solicită chiar acum o vizionare
Telefon
Sună acum Solicită vizionare
Necesare:

Site-ul nu poate funcționa corect fără aceste cookie-uri. Vezi cookie-urile

Statistică:

Strângem statistici anonime despre voi, vizitatorii unici, pentru a vă îmbunătăți experiența dumneavoastră. Vezi cookie-urile

Marketing:

Pentru a ne promova mai eficient serviciile noastre, folosim cookies pentru a vă identifica și a vă oferi proprietăți și servicii personalizate. Vezi cookie-urile

Acest site folosește cookies, află detalii. Alege ce tipuri de cookies dorești să permitem: