ID CP2238558

Vila P+1 Piața Muncii , strada Orzari, apartament cu 3 camere la Parer

ID CP2238558

280,000 €

Casă / Vilă de vânzare
Iancului, Bucuresti
120 mp

Apartament în vila P+1. Se vinde apartamentul de la parter iar la etaj mai locuiește o familie de două persoane liniștite (doctorița și inginer). 

Vila este S+P+1+M și este construita din caramida cu planșee de beton armat. 

Teren de 191 mp conform cadastru, din care curte liberă 63 mp.

În curte sunt și două magazii de 8 mp împreună și una dintre ele este în proprietate. 

La subsol  exista un spațiu comun (o spălătorie) și două camere în proprietate, una de 0,6 mp și alta de 20,4 mp.

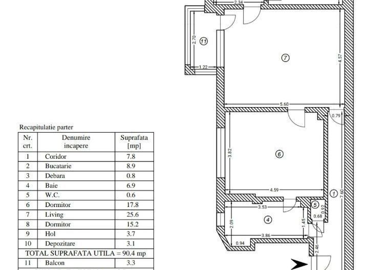
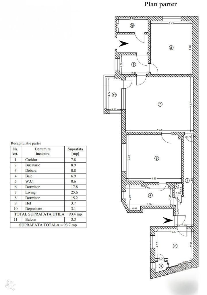
La parterul imobilului se află apartamentul de 3 camere cu suprafața utila de 93,7 mp.

Parterul a fost renovat si consolidat prin cămășuire cu plasa SPPB, cupoane în cărămidă + torcretare (tencuială) iar fundația din partea din față a case a fost consolidata prin subfundare cu fundație continuă de beton armat.

La mansarda se află o camera de de depozitare de 5, 1 mp în proprietate și podul comun cu vecinul, pod înalt unde pe viitor se poate compartimenta și locui, bineînțeles cu acordul vecinului.

Apartamentul se vinde mobilat și cu mobila de din lemn masiv, parchet din lemn masiv (vezi pozele). Apartamentul este legat la utilitati: gaz, electricitate, canalizare, digi și are central proprie.

Pentru detalii și vizionare vă rog să mă contactați la telefon , iar dacă nu răspund vă rog să îmi lăsați un mesaj și voi reveni.

Citește mai mult

  • Disponibilitate
    Imediat
  • Tip casă
    Individual
  • Suprafață utilă
    120 mp
  • Suprafață teren
    191 mp

Facilități

Sarah Szekelyhidi
Manager

0040733773030


Solicită chiar acum o vizionare
Telefon
Sună acum Solicită vizionare
Necesare:

Site-ul nu poate funcționa corect fără aceste cookie-uri. Vezi cookie-urile

Statistică:

Strângem statistici anonime despre voi, vizitatorii unici, pentru a vă îmbunătăți experiența dumneavoastră. Vezi cookie-urile

Marketing:

Pentru a ne promova mai eficient serviciile noastre, folosim cookies pentru a vă identifica și a vă oferi proprietăți și servicii personalizate. Vezi cookie-urile

Acest site folosește cookies, află detalii. Alege ce tipuri de cookies dorești să permitem: